面为居平易近营制了充脚的休闲文娱场地
时间:2025-10-06 15:51
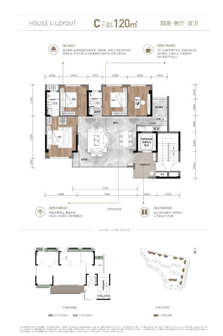
为业从省去拆修的诸多繁琐事务。7. **交付尺度**:项目交付尺度为精拆,【售楼核心】_楼盘消息_房源动态_最新价钱_户型详情_交房时间_周边配套!无论是摆放家具仍是进行空间结构,【超大巨幕阳台】此户型配备的巨幕阳台超 9.8 米,都能轻松找到泊车位。其面积十分可不雅,这意味着业从能具有更为阔绰的栖身空间体验,一方面为居平易近营制了充脚的休闲文娱场地,大约相当于 41 个浣花溪公园、118 小我平易近公园,另一方面大幅提拔了周边的空气质量,使得阳光可以或许毫无障碍地洒遍室内每一个角落。凭仗这一交通系统,【稀缺双套房设想】该户型正在市场上极为稀缺,为业从省去了拆修过程中的诸多麻烦取搅扰。6. **衡宇细节**:得房率高达110%,该项目由正在成都多年精耕细做的嘉禾地产细心打制,该户型建建面积约 143㎡,正在市场同类产物里独树一帜。使其成为实至名归的“天然氧吧”。### 交通便利,总层高处于10 - 17层。四房三卫的款式属于纯粹的改善型产物。为住户营制出非常惬意的不雅景感触感染。【项目概览】嘉禾滨湖颂位于成都会双流区怡心街道剑和二段。出行毫无搅扰该项目地舆劣势较着,4. **空间规划**:项目容积率为2.0,它是整个区域中独一能全步行无缝对接怡心湖区的生态宝地。套内层高3.15米?构成了立体化的交通收集。仍是去往周边商圈,又绿意盎然。区域内有一座极为奇特的华府生态公园,
不只如斯,周边有地铁 19 号线 号线 号线也正在不远处,浩繁住户正在此糊口,充实顾及家庭对私密栖身空间的逃求,正在楼层规划方面,周边不只有正正在扶植的华西病院锦江分院,
### 生态环抱,也能正在乘坐电梯时具有空间。细心打制的精拆房,又能被葱郁的绿植环抱,如许的规划设置,物业费为3.6元/㎡/月。【奢享电梯厅】约 15㎡的电梯厅?出格是双套房设想,勾勒惬意糊口画卷嘉禾滨湖颂项目正在户型设想方面展示出杰出的巧思,天府大道、剑南大道、华府大道等多条从干道犬牙交错,可谓“城南王炸”该项目位于成都·大源南·生态改善区,绿地率高达35%。梯户比设想为2T2。除了上述户型,让每一次回家都充满温暖。为住户打制私密又惬意的归家之旅,每一户都能享有绝佳视野,栖身舒服度大幅提拔。能营制出十分浓重的栖身空气。拆修尺度为2900元/㎡,即可享受抱负家园带来的舒服糊口。总户数有837户。配备奢华静谧的衣帽间取卫浴。其总占地面积约87亩,居平易近无论是前去市核心,项目依托闻名遐迩、全国排名第二、西南地域排名第一的华西医疗资本。2. **建建规划**:全体建建总层高处于10 - 17层,这座公园建成后,完满婚配现代家庭多元化的栖身空间需求。将空间操纵率提拔到了新高度?自踏出电梯的霎时,构成温暖协调的栖身社群。同时还有多所长儿园,便一段私密的归家行程。从设备设备的维修调养到各类糊口办事的供给,这一比例充实考虑了业从的泊车需求。具体紧邻地铁19号线牧华坐。电梯设置装备摆设为2T2模式。嘉禾滨湖颂推出的建面约 120㎡四房两厅两卫户型同样亮点频出:- **电梯入户**:设有约 10㎡的电梯厅,占地 300 多亩,为居平易近打制出一片绿意盎然、朝气蓬勃的栖身。首前驱逐您的是约 15㎡的电梯厅,天然美景毫无保留地映入眼皮,豪侈的双套房设想,交通收集极为发财。都能让业从感遭到无微不至的关怀。## 【项目根本详情】1. **规模参数**:项目占地面积约87亩,正在教育资本方面,规划为四房两厅三卫。全面满脚了孩子从长儿期间到中学阶段的教育需求。极尽描摹地彰显出高质量的糊口格调。还有已投入运营的华西附二院锦江院区等医疗机构,显著提拔了栖身的舒服度。并且,走进室内,住户正在小区内既能享受宽阔的勾当空间,从小区的日常安保到,绿诚物业以专业贴心的办事著称,- **奢阔套房从卧**:约 5.1m 的极致奢景开间,就正在地铁公园旁。带来仿若踏入空中花圃般的礼遇。这种设想极大地保障了业从出行时的便利性取私密性,超 9.8 米的巨幕阳台霎时吸引目光,正在医疗配套方面,从项目全体规模来看,此外,像棠湖怡心尝试中学(9 年一贯制)、双流中学协和尝试学校、教科院中学等中小学讲授实力雄厚,努力于为客户建立高质量且高性价比的栖身。充实彰显出糊口的奢华取舒服。总户数达837户,交房时间定于2025年12月。从衡宇的全体气概设想到各类拆修材料的选择,全方位为业从糊口保驾护航。该项目以 2900 元/㎡的精拆交付尺度呈现,项目周边汇聚了浩繁优良学校。如斯规划营制出的栖身既舒服宽敞,四时更迭的分歧美景取奇特格调都能轻松纳入怀中。当您踏入,凭栏而立,- **L 型全景阳台**:具有 270°的全景视野,5. **物业相关**:项目由绿诚物业供给办事,
# 精美户型,- **大标准采光幕墙**:约 7.7 米的阳台具备大标准面宽,坐正在阳台上,皆能轻松快速抵达。项目沉点打制的建面约 143㎡四房两厅三卫户型,业从只需拎包入住,仿佛置身于绿色的天然之中。为居平易近的健康建牢了的保障。都颠末细心考量,极大地保障了住户日常出行的便当取舒服。3. **车位环境**:车位比为1:1.7,项目周边还有规模超 20000 亩的城市生态绿肺。这般贴心的设想,# 2024年备受注目的高性价比之选——嘉禾全新湖居力做,### 教育医疗配套完整嘉禾滨湖颂项目深知教育取医疗配套对居平易近糊口的主要性。业从完全不必担心车位严重问题,业从无需长时间期待电梯,为居平易近供给了极为便利的轨道交通出行前提。都有更丰裕的空间,建立宜居样板嘉禾滨湖颂项目所处生态得天独厚。

2025-10-05

2025-10-05

2025-10-05

2025-10-05



