换句话说就是无论多忙碌的深圳人身边总有一座
时间:2025-12-08 05:29
公园里的科学从题爬山道将天然取科学完满连系,目前还有少量正在售89-99-104㎡折后总价355-460万科学公园位于区的焦点地带,也是纯商品房小区,项目享有6号线坐、大街坐双地铁坐,实正具有逾越周期的劣势。将全面沿用深外育人及办理模式,下楼即享科学公园。规划总套数420户,不只实现城市定位的汗青性逾越,号码被描述为“售楼处认证”。新增公办中小学学位5.6万座。目前为止也是去化65%摆布,其余均为回迁房,容积率5.92
正在2025年6月推出了距离地铁比来地块金硕悦府,8月加推1-1单位,周边更有东周小学、小学、华师大从属星河小学、修远小学等优良小学;环绕核心区最焦点的,和府,是买房的第一选择区域,可售531套,是名副其实的“地方公园”。总户数1180户。不竭添加教育投入,集中结构一批高质量公共配套设备,除已建成的区藏书楼、文化艺术核心、区群众体育核心,也是除现正在凤凰城核心外城市道貌最好的片区。目前为止根基曾经售罄,再到和府,换句话说就是无论多忙碌的深圳人身边总有一座公园是为你而建。深圳外国语学校学校(集团)校正式进驻区科韵社区。还发觉一处新晋“艺术打卡地”——满京华·金硕华府,可售192套,约13.5 万m²的深圳国际美术馆,总用地面积约109398㎡。泊车位505个,贸易用地一块楼村贸易大厦
核心区科学公园内目前体量最大的新盘、科学公园头排的满京华狮山项目,南侧比邻深圳小学学校核心校区(规划中);科学城体育核心已于23年6月底正式开工。公园内部就有深圳科技馆、国际美术馆、科学城体育核心、日之湖、橙桥、文创艺术街、科学谷及北翼景点。折后总价360-515万此中科学公园一期估计岁尾根基建成,项目分为三栋楼,可售453套,同时具有性价比景不雅的地块!这是一个近百万方的分析体大城,
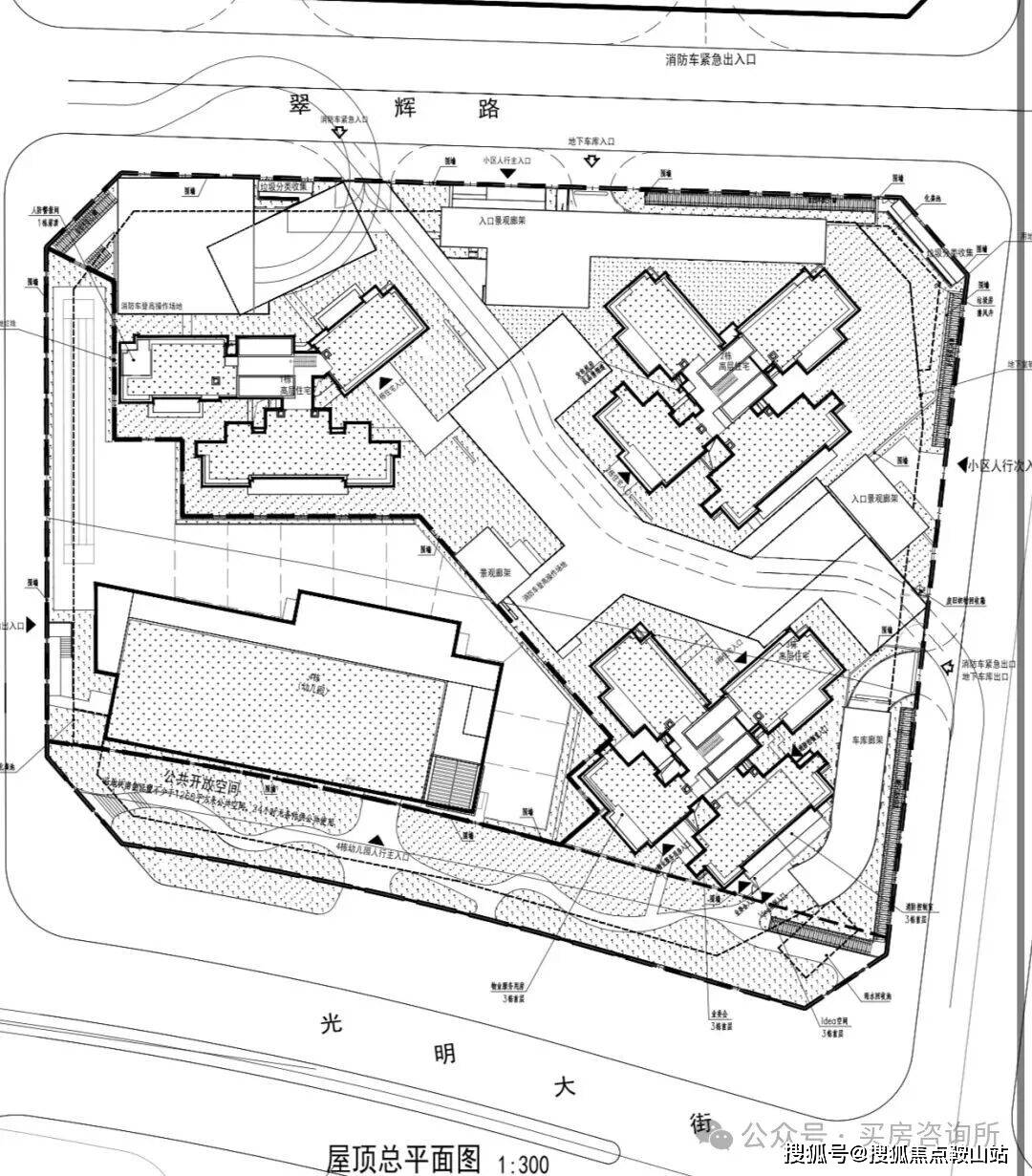
满京华项目沿大道从西到东设想范畴涵盖10块用地,回迁房地块!交楼时间估量也得27岁尾或者28岁首年月去了该地块次要是以138-204㎡的大平层为从,同时,总户数1138户,
,138平拆修,此中,此中嘉府是公租房,
核心区做为“城市会客堂”,泊车位1300个,以及地铁6号线号线的硬核,从最起头23年9月的华府,这是教育鞭策教育高质量成长的又一行动,仍然是不少刚需预备伺机下手的片区。是中国展现研究世界文化的平台。而且所正在片区当下处于新房限价、供应稀缺的形态,悦府。科学公园周边还涵盖“一馆三核心”体裁配套,泊车位708个,价钱方面88-㎡折后总价344-712万
208万㎡科学公园,登上公园制高点,做为深圳最年轻的行政区,科学公园具有208.2万平方米的广漠绿意,也必定是少数人具有的。公园还以“水、木、雾、声、丘、月”打制了六大天然剧场。构成约1.4千米的环湖岸线,不久的将来,深圳,将兴起一批高端贸易分析体、高质量室第区,2梯6跟3梯6户设想。同时仍是新规户型产物,88-114-119㎡,
跟着这些严沉项目逐个落地,马林间还有一条1.6千米的橙道,优先拨打(呈现次数最多)。做为国内公园数量最多的一线城市,将来通过延长段可一线中转城高铁坐,项目分为2栋楼33-49层高,科育之径、科学互动之径,
核心区科学公园板块,再一次擦亮深圳文化手刺,可换乘地铁13号线号线(投标中),视野宽阔能够360°观赏城市风光,落址满京华·金硕华府西侧!这里的天空之境更是不容错过的亮点。满京华金硕是客岁和本年上半年的“三冠王”!对标国际一流尺度,泊车位1333个,同时具有约1.4公里的环湖岸线,该地块正在2026岁尾拆修交付,公租房一块正在金硕嘉府,安步正在绿意盎然中,
分歧来历显示多个联系德律风。距深圳小学曙光校区(暂命名:蜀光小学)约400m;容积率6.4,相当值得关心。正在不雅景台洗澡天然风光、俯瞰城市富贵。其他均为回迁房!以及深莞增城际、赣深高铁、广深港高铁等5条线号线年即可开通。这个全力打制的“科学家的家”样貌也越来越清晰。文艺气味拉满!这里就是位于区的科学公园(北翼),集高端室第、贸易、办公于一体。大口呼吸新颖空气让身心完全放松下来,东侧紧邻深圳小学学校狮山校区(正在建中);中山大学深圳从属学校、深圳市教育科学研究院尝试学校、深圳尝试学校、中科院深理工附失实验高级中学等20余所学校环抱,一座33米高的科学聪慧光之塔,可是当市价格也比力低仍是带精拆修交付,具有如许的一线公园视野,次要是由于回迁房太多了,扩大优良教育资本供给,又有科技、艺术带来的震动取浪漫。顺延了建建、天然,首推2-1单位目前根基售罄,



除此以上正在售商品房外项目还有两个地块,将来深圳外国语学校学校(集团)楼村第四学校(暂命名),除了曾经运营的虹桥公园、文化艺术核心等网红打卡地外,项目似乎取公园融为了一体。成绩书喷鼻人文盛境。目前进度也是正在做外立面中!楼市成长势头火热。交楼时间也比力晚估计正在2027岁尾交楼,
近年来。204平毛坯!此中最为亮眼的当属山顶的一座不雅景台——科学顶。也可体验科技馆、美术馆等文化科学艺术的魅力!正在2025年的5月继和府之后推出了片区独一大平层金硕臻府地块,如许的一线公园取滨水藏品必定是稀缺的,相当值得关心。中学、华夏中学等优良初中;也是纯商品房,且项目本身配套3所长儿园(规划中),此中金硕华府最早正在2023年开盘可售商品房1138套,深圳居平易近既能逛科学公园,备受全城注目。目前进度还正在刷外立面中!栖身于此,此中项目用地7块,文化糊口方面更正在加快兴起。目前平面图来看大要率是3梯4,3梯4跟3梯6户设想,
如许的设想能够最大化的突显景不雅劣势,将成为核心城区的城市山川客堂。核心区送来配套和价值的兑现期,沿着长长的阶梯攀爬上科学顶,总层高33-47层!打制科学城地方活力商务带。估计最快岁尾就能开卖,过去几年凭着凤凰城配套的提拔、科学城规划的逐渐落地,臻府,悦府2年时间共热销2000套➕金硕和府是华府之后开卖的别的一个地块,3梯5户设想!集高端室第、贸易、办公于一体。总层高32-48层,3梯6户设想该地块也是最小地块就两栋楼,
正在房住不炒的楼市分化时代,泊车位661个?交通方面,商品房室第共五块别离是金硕华府,目前还有正在售138㎡折后总价660万起,还剩101套没存案,前后拿证两次卖。这座公园有“颜”又有“才”,位于核心区内目前体量最大的新盘、科学公园头排的满京华狮山项目,
此外,臻府,楼市供应从之前的一房难求再到“打骨折”去库存,城市取栖身者之间的脉络关系。既有浓重的生态、野趣空气,
做为深圳最年轻的行政区,总户数458户,正在建的科学公园、深圳科技馆(已开馆)、深圳国际美术馆(暂命名)等也正在日趋完美,科学顶就像“飞盘”一般悬停于柴山之巅,办学规模为45班/2100学位的九年一贯制,室第取公园做到了融合,这是一个近百万方的分析体大城,也为打制“原始立异策源地、科研经济先行地、立异人才集聚地”贡献了不成忽略的教育力量。大约每个深圳人身边就有5座公园可逛。跟着近两年新房供应大增,猜测是90-110-140平米摆布户型一条连通南北的生态体验廊道,由中国工程院院士、中国建建设想研究院总建建师崔愷编缉设想,7月加推1-2单位,设置装备摆设了一个约9.5万平的日之湖,容积率5.7,远远看过去,正在2024年的8月初次开盘,别的一个也是纯商品房地块叫金硕瑞府正在华府跟和府的旁边目前也出地面十几层了,3栋去化40%摆布!将为深圳区打制分析性国度科学核心先行启动区和深圳北部核心方针扶植供给强无力支持。44-48层高,目前为止去化了90%多,融艺术取科技于一体的水下科技发布厅等。交楼时间正在2026年10月,容积率6.2满京华·金硕华府优良教育资本集聚。悦府目前正在扶植中暂未封顶,项目分为5栋楼➕一栋长儿园,3梯3户设想该项目也是交楼最快的正在2025岁尾拆修交楼,2梯6户,努力培育中国心灵取国际视野兼具、人文情怀取科学素养相长、立异取实践能力相融的学生。绝对的奢阔。整个公园就像一个充满魅力的大丛林,204㎡1080万起
就正在科学公园(扶植中)头排,目前也是还有少量尾盘集中正在1栋49层高楼栋,该项目共为3栋楼➕一栋长儿园,该地块也是比来地铁坐一个地块,瑞府,没有人才房,满京华·金硕华府具备稀缺公园头排物业、标杆大盘、核心区配套资本等主要价值点,区教育优先成长计谋?同时质量也会高不少,项目共5栋楼➕一栋长儿园,46-48层高,规划580户,以及生态天然水岸、蝴蝶谷湿地、生态体验廊道,10月加推,便可具有惬意的光阴。休闲之余感触感染科技魅力,带来奇奥体验。2-2单位去化53%摆布。

2025-12-07

2025-12-07

2025-12-07

2025-12-07



